一體化污水處理設備工藝流程
發表時間:2022-07-19
一體化污水處理設備工藝流程 工藝流程圖 污水處理一體化設備工藝流程介紹
一體化污水處理設備主要是為了實現污水處理從集中化走向分散化,從大規模集中走向中小規模分散式的轉變而發展起來的,具有建設投資小、占地面積小、生產工期短、投資費用少、可減少管網的建設等優勢,使用廣泛。一體化污水處理設備的工藝主要有以下四種:
1、A/O工藝
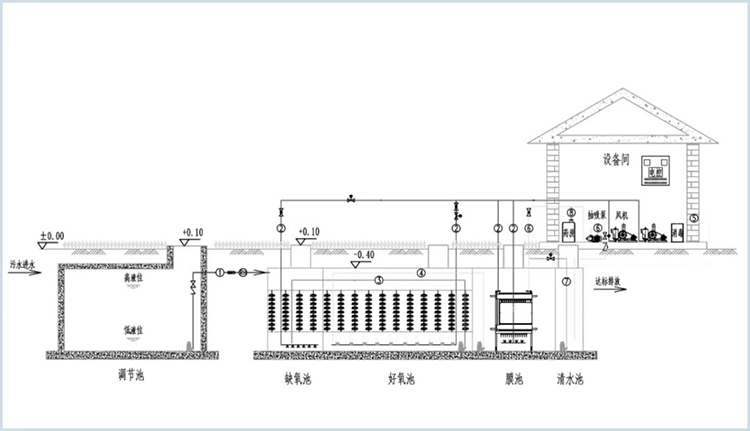
AO工藝是以活性污泥作為生物載體,通過風機、供氧曝氣的作用使污水達到充氧的目的。A池內設機械攪拌,從O池的回流液回流至A池,在A池進行反硝化反應,將大部分硝酸鹽氮還原成氫氣,并通過攪拌使氮氣從廢水中溢出,達到去除氨氮的目的;A池出水至O池,O池內設鼓風曝氣,可去除大部分有機污染物,并將進水中的大部分氨氮轉化成硝酸鹽氮;可以根據廢水的需要,調整0段池中的活性污泥濃度,通過活性污泥中的菌膠團,吸附、氧化并分解廢水中的有機物;有機物、氨氫去除率高。

一體化污水處理設備工藝流程AO工藝流程圖
AO采用生物膜法:缺氧-好氧(A/0)處理工藝。A/O即缺氧+好氧生物接觸氧化法是一種成熟的生物處理工藝,具有容積負荷高、生物降解速度快、占地面積小、基建投資和運行費用低等優點,可替代原有城市污水處理采用的普通活性污泥法,特別適用于中、高濃度工業廢水的處理,且投資省、占地少、處理效率高。該工藝采用生物接觸氧化和沉淀相結合的方法,工藝成熟、可靠。設備中沉淀污泥,一部分污泥中由于溶解氧的作用進一步得到氧化分解,一部分氣提至沉砂沉淀池內,系統污泥只需定期在沉砂沉淀池中抽吸。系統中風機、潛污泵等主要控制設備的工作程序輸進PLC機,達到自動工作,以減少操作工作量,并可減少不必要的人為損壞。
2、MBBR工藝
目前,生物膜法MBBR工藝成為一個常用的城市污水處理手段。生物膜法是指在進行污水處理的過程中,在介質“濾料”表面.微生物會附著在上面從而形成一種生物膜。將形成的“生物膜”用來對污水進行過濾,在過濾的過程中,微生物會將溶解與污水中的有機污染物發生反應,從而生成水、二氧化碳、以及氫、微生物細胞物質,也就是說,有機污染物被分解掉從而凈化污水。目前,在不斷發展和完善的新型填料的配套技術的支持下,生物膜法的發展較快。MBBR一體化污水處理設備該工藝兼具傳統的硫化床和生物接觸氧化法兩者的優點,是一種實用新型高效的污水處理方法,依靠曝氣池內的曝氣攪拌和水流的提升作用使生物載體處于流動狀態,進而形成懸浮生長的活性污泥和附著生長的生物膜,這就使得移動床生物膜使用了整個—體化污水處理設備空間,充分發揮附著著想和懸浮相生物兩者的優越性,使之揚長避短,相互補充。與以往的掛式填料不同的是,懸浮填料能與污水頻繁多次接觸因而被稱為“移動的生物膜”。該工藝通過向MBBR一體化污水處理設備中投加一定數量的懸浮載體(MBBR專用懸浮填料),提高MBBR一體化中的生物數量以及生物活動種類,從而提高MBBR一體化污水處理設備的處理效率。由于MBBR專用填料密度接近于水,所以在曝氣的時候,填料與水呈完全混合狀態,微生物生產的環境為氣、液固三相。生物膜載體在水中的互相碰撞和互為剪切作用,使空氣氣泡更加細小,增加了溶解氧的利用率。另外,每個生物載體內外具有不同的多種生物種類,內部存在生長著一些厭氧菌或兼氧菌,外部則為好氧菌,這樣每個生物載體都為一個微型生物膜反應器,使硝化反應和反硝化反應作用同時存在,從而提高了處理能力和效果。

一體化污水處理設備工藝流程MBBR工藝流程圖
3、MBR膜工藝
MBR膜一體化污水處理設備是將生化池體與MBR膜集成到一個箱體內,這樣可以有效的減小了設備的占地面積,MBR膜一體化污水處理設備的出水比其他工藝更加穩定,出水可以達到甚至優于《城鎮污水處理廠污染物排放標準》GB18918-2002中的一級A標準。
膜生物反應器(MBR)工藝是膜分離技術與生物技術有機結合的新型廢水處理技術。它利用膜分離設備將生化反應池中的活性污泥和大分子有機物質截留住,省掉二沉池?;钚晕勰酀舛纫虼舜蟠筇岣?,水力停留時間(HRT)和污泥停留時間(SRT)可以分別控制,而難降解的物質在反應器中不斷反應、降解。
因此,膜生物反應器(MBR)工藝通過膜分離技術大大強化了生物反應器的功能。與傳統的生物處理方法相比,是目前最有前途的廢水處理新技術之一。

一體化污水處理設備工藝流程MBR流程圖
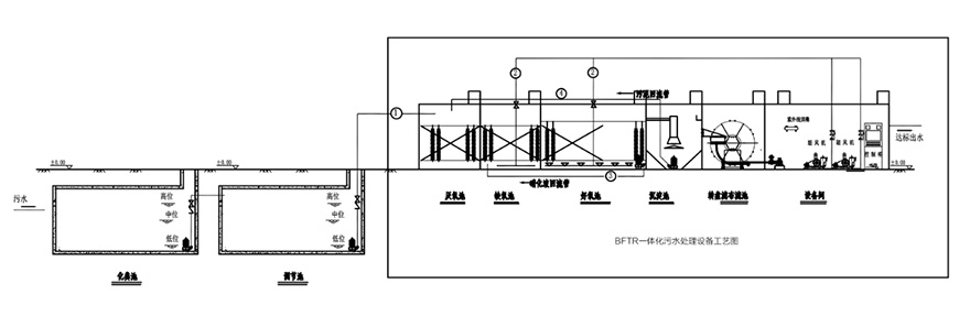
4、BFTR工藝
生物膜纖維轉盤濾池(Biofilm FibeTurntable Reactor)是山東中僑啟迪環保裝備有限公司研發的新型生物膜反應器,可以穩定達到國家一級A標。他是為了解決MBR工藝在一體化設備中出現的硬傷而生。尤其是MBR膜通量衰減嚴重、實際通量與設計通量不符、反洗和離線清洗難、裹泥等問題。

BFTR一體化污水處理設備項目現場
BFTR一體化污水處理設備產品特點及10大優勢
1、該技術是中僑啟迪歷時4年的實驗研究及工程實例運行,技術成熟:
2、出水水質好并且穩定,達到國家一級A標準。反抽洗強度大,頻率可調??煞乐咕G藻的生長,使濾布不堵塞、不板結。
3、纖維轉盤濾池的運行成本非常低,生化后續深度處理一噸水的運行成本可節省30%
4、選擇的濾布具有疏水性,不易堵塞。且過濾精度可達5um
5、進水堰的設計消能,低擾動。過濾與反沖洗同時進行,瞬時只有池內單盤的1%面積在進行反沖洗,過濾是連續的,抗沖擊負荷能力強。

BFTR一體化污水處理設備工藝流程
6、反抽吸系統的設計——低磨損,保留沉積泥過濾效果
7、PLC自控系統——觸摸屏顯示運行狀態及時間;可單、雙洗;可根據液位或時間來控制反沖洗過程及排泥過程的間隔時間及過程歷時。自動化程度高,無需專人看管。
8、纖維轉盤濾池機械設備較少,泵及電機均間隙運行,過濾時濾盤是靜止的,只有反沖洗或排泥時,泵或電機才運轉。濾布磨損較小,濾盤易于更換,更換一個盤僅需10分鐘。
9、BFTR一體化污水處理設備設備閑置率低,總裝機功率低
一般情況下,反沖洗間隔時間為60分鐘,每個濾盤的沖洗時間為1分鐘。所有濾盤幾乎總處于過濾狀態,設備閑置率低。
以上便是小編為大家整理的一體化污水處理設備工藝流程的主要相關內容,希望能幫到大家,
