mbr一體化污水處理設備流程
發表時間:2022-12-02
mbr一體化污水處理設備流程
mbr一體化污水處理設備因其處理水質好可達到A級排放標準,所以有些對于水質要求嚴格的項目MBR一體化污水處理設備的選擇還是非常必要的,今天小編帶大家來了解一下MBR一體化污水處理設備流程。

mbr一體化污水處理設備項目現場實拍圖
產品工藝流程概述:
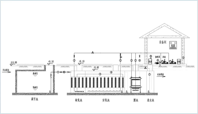
MBR一體化污水處理設備的核心部件是膜生物反應器(MBR),它是膜分離技術與生物技術有機結合的新 型廢水處理技術。污水進入MBR系統。A區為兼氧區,放置填料,并與活性污泥進行充分接觸。O區為好氧區,放置膜組件,使用PVDF膜將活性污泥和大分子有機物質截留住,省掉二沉池。活性污泥濃度因此大大提高,水力停留 時間(HRT)和污泥停留時間(SRT)可以分別控制,而難降解的物質在反應器中不斷反應、降解。
進一步處 理之后,被處理水可以達標排放或回用。此外,輸送到MBR系統中的空氣也是處理過程中非常重要的一部分,它可以促進反應器中流體的循環流動,提高活性污泥的降解效率,還可以使中空纖維膜絲之間發生相互摩擦,清潔膜組件。
MBR一體化污水處理設備流程圖

采用mbr一體化污水處理設備流程的優勢
mbr一體化污水處理設備流程的設備應用范圍
本工藝的設備可以應用于農村污水處理項目、賓館、酒店、農家樂、醫院、小區、車站、高速公路服務區、飛機場、海港碼頭、船舶;工廠、礦山、部隊、旅游點、風景區;城鎮污水處理項目及類似于生活污水的處理項目。

mbr一體化污水處理設備咨詢采購聯系方式
