一體化污水處理設備工作原理
發表時間:2024-01-09
一體化污水處理設備工作原理
核心技術簡介:
浸沒式超濾技術:
一體化污水處理設備核心技術為浸沒式超濾技術(MBR),它是將膜分離技術與生物處理技術有機的結合在一起的新型廢水處理技術,也稱膜分離活性污泥法。它利用膜分離設備將生化反應池中的活性污泥和大分子有機物質截留住,水力停留時間(HRT)和污泥停留時間(SRT)可以分別控制,而難降解的物質在反應器中不斷反應、降解。一方面,膜截留了反應池中的微生物,使用池中的活性污泥濃度大大增加,使降解污水的生化反應進行得更迅速更徹底,另一方面,由于膜的高過濾精度,保證泥水分離的效果,從而節省了二次沉淀。因此,MBR工藝通過膜分離技術大大強化了生物反應器的功能。

一體化污水處理設備工作原理
一體化污水處理設備工作原理MBR的優點:
① 出水水質穩定,浸沒式超濾是以膜分離過程取代傳統工藝中的重力沉淀,解決了由顆粒沉降性決定處理結果的技術難題,恒定的過濾精度對于產水水質和運行情況的變化均有很強的適應性,能很好地實現固液分離,保證出水水質。
② 工藝簡單。與傳統物化、重力沉淀、柱式超濾相比,工藝更為簡單,也易于管理。
③ 占地面積小,由于膜的高效分離作用,還可節省重力沉淀空間、過濾等固液分離設備,且出水懸浮物濃度遠低于傳統固液分離設備,使整個設備流程簡單,易于集成,設備占地大為縮小。

一體化污水處理設備基礎款
④ 管理簡單方便、自動控制化程度高、運行成本低,整機能夠實現自動間歇運行,設備泵閥自動遵照程序啟停,設有水位自動控制、膜污染控制、故障報警等控制,管理和操作更為方便,并可節省加藥消毒、清洗所帶來的長期運行費用。
工藝的選擇
一體化污水處理設備的主要工作原理是通過對培養微生物來消化污水水中的有機物,從而使水質變的更好,以達到地方或者國家的排放標準。我國目前根據項目或地方上不同的處理標準逐漸形成了以AO工藝、MBR工藝、MBBR工藝為主體的中僑啟迪生物膜法污水處理工藝。
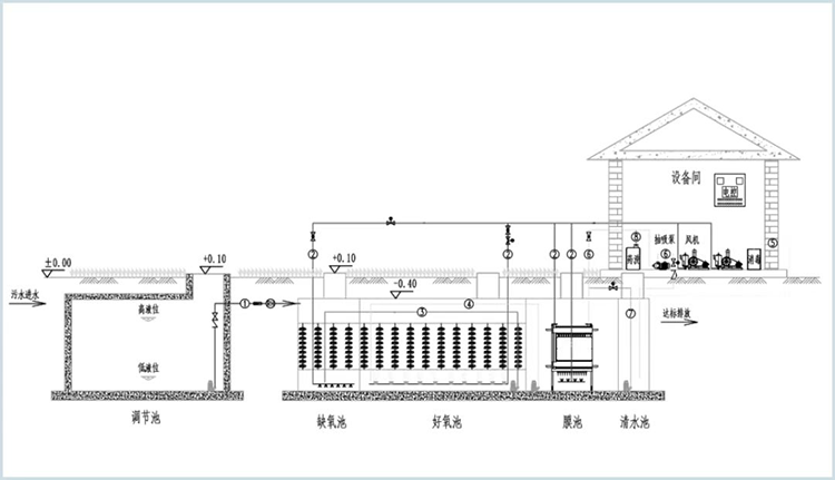
山東中僑啟迪環保裝備有限公司的一體化污水處理設備常見的AO工藝流程為調節池+缺氧池+好氧池+沉淀池+污泥池+清水池;還有MBR工藝流程;流程為:格柵池+調節池+厭氧池+好氧池+MBR池+清水池

AO工藝一體化污水處理設備工作原理圖
一體化污水處理設備工作原理可以劃分為如下:分類說明
1、化糞池:化糞池是處理糞便并加以過濾沉淀的設備。經過化糞池處理,初步的去除懸浮物,減輕后續處理單元的壓力。
2、一體化設備中的調節池:調節水量與水質,均質均量,調節池內設置格柵,攔截雜物,同時進一步去除懸浮物。
3、一體化設備中的缺氧池:主要起反硝化去除硝態氫的作用,同時去除部分BOD。也有水解反應提高可生化性的作用。

MBR膜一體化污水處理設備工作原理圖
4、一體化設備中的好氧池:在好氧池中,有機物被微生物生化降解,而繼續下降;有機氮被氨化繼而被硝化,使NH3-N濃度顯著下降,但隨著硝化過程使NO3-N的濃度增加,P隨著聚磷菌的過量攝取,也以較快的速度下降。
5、一體化設備中的沉淀池:通過中心穩流筒降低水流速度,使水中的微小雜質進一步沉淀,水質得到進一步澄清。
6、一體化設備中的污泥池:儲存調節池和沉淀池沉淀下來的污泥。
7、一體化設備中的清水池:儲存沉淀池流出的清水,清水池兼具消毒池的功能,往往通過在清水池投加消毒劑來達到給污水消毒的目的。

一體化污水處理設備采購單位非常重要,一定要選擇一家有實力的生產廠家;實力生產廠家具備格方面的優勢,后期設備運行有保障;
山東中僑啟迪環保裝備有限公司成立于2013年,是一家集技術研發、項目設計、設備制造、工程安裝、調試運營、技術咨詢服務為一體的高新技術企業。?
公司主要經營:一體化污水處理設備、氣浮機、過濾器;多年來致力研發、創新、深耕一體化污水處理設備,追求精益求精;助推水處理技術及制造行業的前進。并陸續推出了中僑箱、中僑罐、MBBR一體化污水處理設備、QDPP一體化污水處理設備等核心產品。

一體化污水處理設備工作原理!生產廠家
旗下的中僑啟迪(山東)新材料有限公司,投入了一體成型PP新材料罐體生產線、MBBR生產線、PP焊條生產線,同時擁有新型塑料制品的大型自動焊臥焊、自動焊立焊、大型雕刻機、折彎機、碰焊機、下料機等加工設備,基于新材料罐體的特性和工藝改良,并采用自產的MBBR填料,又推出了新產品:中僑罐臥罐A/B、中僑罐立罐A/B。
公司具有雄厚的技術實力和一批獻身于水處理事業的科技人員,具備環保工程專業承包三級資質、安全生產許可證、50余項實用新型專利、5項發明專利及1項國際發明專利、21項軟件著作權、通過中環協CEP認證、三體系認證證書;同時擁有“專精特新”“企業技術中心”“山東知名品牌”“一企一技術研發中心”“濰坊市工業設計中心”“濰坊市隱形冠軍”“濰坊市重點實驗室”“ANSO環境科技產業聯盟理事單位”等多項稱號和榮譽;擁有經驗豐富的設計、運算團隊,有著高水平、高素質的生產團隊,配套高粘度專業服務的業務人員,細致高效、響應快速的售后團隊。

一體化污水處理設備濰城生產基地
